We blend human expertise with the intelligence of advanced AI design software to bring you inspired, detail-driven interior concepts every time.
This house plan is a contemporary interpretation of the classic farmhouse, blending traditional gabled rooflines with modern design elements like large black-framed windows and an open-concept layout. It is well-suited for a family requiring ample living space, featuring a main-level primary suite, three additional bedrooms upstairs, and a fully finished lower level that offers flexibility for recreation or a fifth bedroom.
Floor Plans
Main Level
2nd Floor
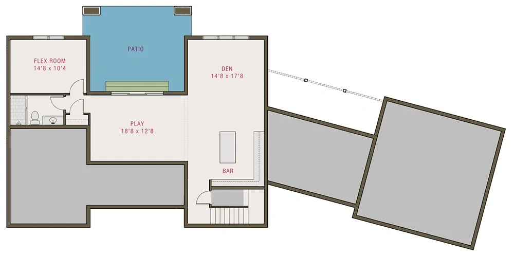
Lower Level
The main level is organized around an open-concept living, dining, and kitchen area. The living room features a dramatic two-story ceiling and a fireplace, connecting directly to a large rear covered porch. The kitchen includes a center island and adjoins the dining space. The prime bedroom suite is conveniently located on this floor, complete with a private bath and walk-in closet. A mudroom links the angled two-car garage to the main living areas. The second floor accommodates three secondary bedrooms, two full bathrooms, and a balcony hallway that overlooks the great room below. The finished lower level significantly expands the living space, featuring a large recreation room with a bar, a flex room that could function as a fifth bedroom or home office, a full bathroom, and access to a lower-level patio.
Exterior Images





The exterior is defined by multiple steep gables and a mix of siding materials, typically board-and-batten, creating a strong verticality. A timber-framed front porch with a metal accent roof provides a welcoming entryway. Large, multi-pane windows in black frames are a prominent feature, offering a modern contrast to the traditional forms and ensuring plentiful natural light for the interior. The angled garage adds visual interest to the overall massing of the home.
Interior Images






The interior is characterized by its bright and open feel, highlighted by the two-story great room with its floor-to-ceiling fireplace. The kitchen is designed for functionality with a large central island and modern cabinetry. Natural wood elements, such as exposed beams and hardwood flooring, bring warmth to the space. The layout fosters a strong connection between the primary living areas, while the separate levels provide distinct zones for privacy and recreation.
Positives
- The two-story great room creates a spacious and impressive central living area.
- A main-level primary bedroom suite offers convenience and single-level living potential.
- The finished lower level provides a large, versatile space for recreation, a home theater, or an additional bedroom suite.
Points to Consider
- The two-story volume of the great room may lead to higher heating and cooling demands.
- The angled garage may require a specific driveway configuration and lot shape.
Other Facade Suggestions
Classic White Farmhouse
This facade presents a timeless modern farmhouse look with crisp white board-and-batten siding contrasted by black shutters and window frames. A red brick pathway leads to the front steps, bordered by established rose bushes and manicured low hedges. This style is well-suited for homeowners who appreciate a clean, traditional aesthetic with a modern touch.
High-Contrast Modern
A bold interpretation, this design uses white horizontal siding paired with a dark metal roof and black window frames. The landscaping is minimalist and modern, featuring large concrete pavers with river rock joints and sculptural plantings like agave and olive trees in geometric planters. It is ideal for those with a preference for sleek, contemporary design.
Coastal Retreat
This variation features light blue siding and white trim, evoking a breezy, coastal feel. A gravel driveway and a timber boardwalk path lead to the entrance, flanked by naturalistic plantings of grasses, white hydrangeas, and lavender. This style is a perfect fit for a beachside or lakefront property.
Rustic Modern Wood
Natural vertical wood siding covers the exterior, giving the home a warm, rustic-modern character. The landscaping includes concrete retaining wall planters filled with ornamental grasses and a broad concrete driveway, blending organic materials with modern hardscaping. This aesthetic is suited for a natural setting or for those who love the look of natural wood.
Stone and Timber Craftsman
This facade combines stone veneer on the main body with dark wood accents on the gables and garage, creating a grounded, Craftsman-inspired look. A paver driveway and a flagstone path are complemented by lush garden beds featuring hydrangeas and ferns. It is a great choice for a rustic or mountain environment.
Forest Green Craftsman
Deep forest green board-and-batten siding is paired with warm cedar shakes in the gables, offering a rich, earthy color palette. A low stone retaining wall and a paver driveway frame colorful flower beds filled with coneflowers and hostas. This style integrates well into a wooded lot or a mature neighborhood.
Industrial Modern Black
A striking, contemporary design featuring dark corrugated metal siding for an industrial edge. The exterior is complemented by a large concrete driveway, concrete planters with tall architectural grasses, and black river rock mulch. This facade is perfect for a homeowner wanting a bold, ultra-modern statement.
Dramatic Evening Black
This view showcases an all-black exterior with vertical siding, emphasizing a moody and dramatic modern aesthetic. Warm interior lighting glows through the large windows, and low landscape lighting highlights the texture of the dark plants and a black paver walkway. It is an ideal choice for those seeking a sophisticated and impactful modern home.
Conclusion
This modern farmhouse plan is a comprehensive design that successfully combines a stylish exterior with a highly functional and flexible interior layout. The inclusion of a two-story great room, a main-level primary suite, and a finished lower level makes it a compelling option for families seeking a home that can adapt to their changing needs.






No comment