We blend human expertise with the intelligence of advanced AI design software to bring you inspired, detail-driven interior concepts every time.
This house plan presents a modern interpretation of the barndominium style, offering a balance of open living spaces and substantial utility areas. The design is characterized by a two-story central living area, a convenient main-floor primary suite, and an exceptionally large attached garage structure designed to accommodate workshops, storage for large vehicles, or recreational equipment. It is a practical layout suited for those needing significant functional space alongside comfortable living quarters.
Floor Plans
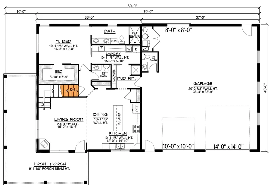
Main Level
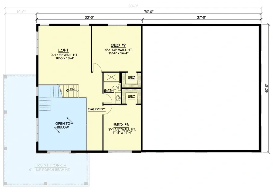
2nd Floor
Basement Option
The main level features an open-concept design integrating the living room, dining area, and kitchen. The living room is distinguished by a two-story ceiling and a fireplace, creating a central focal point. The kitchen includes an island and is adjacent to the dining space. The primary bedroom suite is located on this floor, offering convenience with a large walk-in closet and an ensuite bath featuring dual vanities and a tile shower. A functional mudroom with lockers connects the living area to the expansive garage, which features two oversized overhead doors (10'x10' and 14'x14'). A laundry room and a half bath are centrally located near the mudroom. The second floor is accessible via a staircase from the living area and includes a loft space that overlooks the floor below, with access to a balcony. Two secondary bedrooms are located on this level, each with a walk-in closet, sharing a Jack-and-Jill bathroom with separate sink areas.
Exterior Images









The exterior embraces the barndominium aesthetic with vertical metal siding and stone veneer accents at the foundation and chimney. A metal roof with cupolas adds to the barn-inspired character. A prominent feature is the wraparound front porch supported by timber posts, providing outdoor living space. The large attached garage section is defined by its scale and the presence of substantial glass-paneled overhead doors, indicating its utility.
Interior Images









The interior is defined by the volume of the two-story living room, which creates a sense of spaciousness and visually connects the main and upper levels. The open floor plan facilitates flow between the kitchen, dining, and living areas. The kitchen is designed with a central island for workspace. The upper-level loft provides a flexible bonus area that benefits from the open feel of the space below. The design allows for a variety of finish options.
Positives
- Primary bedroom suite is located on the main floor for accessibility.
- The attached garage is exceptionally large with oversized doors, suitable for a workshop or RV storage.
- A functional mudroom and laundry area serve as a buffer between the garage and living spaces.
- The open-concept living area features a dramatic two-story ceiling and fireplace.
Points to Consider
- The open two-story living room may result in sound transmission between floors.
- Heating and cooling the large volume of the two-story space may require efficient HVAC planning.
Other Facade Suggestions
Classic White Farmhouse
This variation presents a crisp, modern farmhouse look with white board-and-batten siding contrasted by a black metal roof and black window frames. The stone veneer base is a light grey, complementing the white siding, while the timber porch posts add a touch of warmth. The exterior is completed with neat green hedging, white hydrangeas, and a paved walkway. This style is suited for those who appreciate a clean, timeless aesthetic that blends traditional forms with modern color contrasts.
Moody Rustic
This facade adopts a darker tone with charcoal grey vertical siding and a dark metal roof. The stone work is dark and rugged, and the timber elements on the porch are stained in a deep tone. The landscaping features ferns, hostas, and large boulders, enhancing the rustic feel. This option is for homeowners looking for a bold exterior that feels grounded.
Minimalist Scandinavian
Achieving a clean look, this design uses white vertical siding for both the walls and trim, creating a seamless appearance. A black metal roof provides contrast. The front door is a light, natural wood. The landscaping is understated with green lawn and simple shrubs. This style is ideal for those who prefer modern simplicity and clean lines.
Nature-Inspired Green
This version uses a deep forest green for the siding, which pairs with the natural stone chimney and base. The timber porch structure is prominent. A flagstone path leads through a garden of colorful flowers. This facade is a choice for those who want their home to blend with a natural setting.
Light Coastal Barn
Featuring light grey vertical siding and a light beige stone base, this facade has a soft feel. The metal roof is a medium grey, and the front door is light wood. The landscaping includes sandy soil, grasses, and a wooden boardwalk path. This style is well-suited for a coastal or relaxed setting.
Industrial Corten
This design showcases rusted Corten steel siding on the main body of the house, providing a textured orange-brown patina. This is contrasted with concrete foundation walls and porch columns. The landscaping is xeriscape-inspired with gravel and concrete planters. This style is for those seeking a contemporary, rugged industrial aesthetic.
Modern Stucco
Presenting a sleek appearance, this facade features smooth white stucco walls topped with a black metal roof. A dark grey stone base provides a grounding element. The landscaping is geometric with concrete pavers and gravel beds. This style is ideal for a modern preference for smooth textures over traditional siding.
Authentic Wood Barn
This variation embraces a traditional barn look with natural wood vertical siding that has a warm tone. A stone chimney and base add to the character. The landscaping features a flagstone path and traditional garden plants. This is a choice for those who want an authentic, warm country home aesthetic.
Conclusion
This house plan offers a practical combination of modern living space and exceptional utility. The barndominium style is executed with a functional floor plan that includes a main-floor primary suite and open living areas. A significant feature is the massive garage and workshop space, which provides marked versatility for hobbies or storage. It is a well-designed option for those requiring substantial utility space alongside their home.






No comment