We blend human expertise with the intelligence of advanced AI design software to bring you inspired, detail-driven interior concepts every time.
This two-story house plan, with a sprawling single-level feel, offers a practical and spacious layout suitable for a variety of families. Blending modern and rustic architectural elements, the design provides over 3,500 square feet of living space, characterized by open communal areas, dedicated private zones, and a strong connection to the outdoors.
Floor Plans
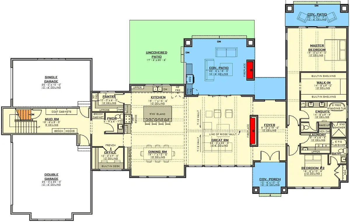
Main Level
2nd Floo
The main level is designed around a central, open-concept living area. The foyer leads directly into a large great room with a vaulted ceiling and a fireplace, which flows seamlessly into the dining area and kitchen. The kitchen features a substantial island and is supported by a large walk-in pantry. A split-bedroom layout places the primary suite on the right side of the plan for privacy, complete with a large walk-in closet and a five-piece ensuite. A second bedroom with an ensuite is also on this level, along with a home office, powder room, and a generously sized mudroom connecting to the three-car garage. The second level, accessible via stairs near the mudroom, includes a loft space overlooking the great room and two additional bedrooms that share a Jack-and-Jill bathroom. The plan also includes significant covered outdoor patio space with a second fireplace.
Exterior Images





The exterior of the home presents a modern interpretation of a ranch or mountain style house. It features a combination of materials, including board-and-batten siding, stone veneer accents, and natural wood elements on columns and beams. The roofline is composed of several gables with a mix of metal and asphalt shingle roofing, adding visual interest. Large windows are a prominent feature across the facade, suggesting bright interior spaces. The design includes inviting covered porch areas at both the front entrance and the rear, extending the living space outdoors.
Positives
- Private main-level primary suite separated from other bedrooms.
- Excellent service zones including a large mudroom, pantry, and dedicated laundry room.
- Extensive covered outdoor living areas with a fireplace, expanding the usable space.
Points to Consider
- Second-floor bedrooms have sloped ceilings, which may restrict furniture placement.
- The split garage configuration may not be preferred by all homeowners.
Other Facade Suggestions
Japandi Zen
This facade embraces a Japandi aesthetic, combining Scandinavian functionality with Japanese rustic minimalism. It features dark, charcoal-colored vertical siding contrasted with light beige stucco and natural wood accents around the windows and doors. A dark tiled roof complements the color scheme. The landscaping is a meticulously designed Zen garden, complete with a raked gravel area, large stepping stones, moss-covered mounds, and strategically placed specimen trees, creating a serene and calming environment. This style is well-suited for those who appreciate a minimalist, peaceful, and balanced design.
Scandi-Modern Farmhouse
This variation presents a bright and clean Scandi-modern farmhouse look. The primary cladding is white board-and-batten siding, accented by sections of natural, warm-toned wood siding and columns. A light gray metal roof adds a modern touch. The landscaping is naturalistic and low-maintenance, featuring a large concrete paver driveway, ornamental grasses, and clusters of evergreen shrubs, providing a welcoming and airy feel. This aesthetic is ideal for homeowners who prefer a fresh, timeless, and inviting exterior.
Industrial Modern
A bold, contemporary statement is made with this industrial modern facade. The house is clad in dark, almost black siding, with striking accents of weathered COR-TEN steel panels around the windows and entry. A dark metal roof completes the monochromatic, moody palette. The landscaping is minimalist and architectural, utilizing a concrete driveway, dark gravel beds, and sculptural plants like agave and yucca. This style appeals to those drawn to edgy, sophisticated, and dramatic design elements.
Rustic Lodge
This facade evokes a warm, traditional rustic lodge feel. It features dark brown wood siding combined with prominent, rugged stone veneer on gable walls and chimney elements. A textured wood shake roof adds to the rustic character. The landscaping is lush and classic, with a flagstone driveway, a manicured green lawn, ferns, and flowering rhododendrons, creating a cozy and established appearance. This style is perfect for those who desire a home with a strong connection to nature and a comforting, traditional ambiance.
Coastal Breeze
Inspired by coastal architecture, this facade uses light, whitewashed wood siding and pale stone veneer to create a relaxed, breezy feel. A light grey composite roof complements the soft color palette. The landscaping is beach-inspired, featuring a crushed shell or gravel driveway, sandy beds with driftwood accents, dune grasses, and abundant hydrangeas. This aesthetic is suited for homeowners who want a bright, airy, and vacation-like atmosphere for their home.
Sleek Monochrome
This ultra-modern facade is defined by a sleek, monochromatic black color scheme. The siding, stone veneer, window frames, and metal roof are all rendered in deep black, creating a striking and unified form. The landscaping is highly structured and minimalist, with a smooth concrete driveway, precisely manicured low hedges, and dark gravel beds, emphasizing geometry and clean lines. This style is for those who appreciate a minimalist, sophisticated, and high-impact architectural statement.
Craftsman Cottage
Combining Craftsman and cottage elements, this facade features warm green board-and-batten siding, complemented by earthy stone veneer and natural wood timber accents. A brown metal roof adds a durable, rustic touch. The landscaping is natural and picturesque, with a paver driveway, a small pond with a stream, river stones, and a profusion of wildflowers and native plants. This style is ideal for those who want a charming, inviting, and nature-oriented home.
Conclusion
This house plan is a well-considered example of modern ranch design, offering a versatile layout that balances open communal spaces with private retreats. Its functional service areas and strong connection to the outdoors make it a pragmatic and appealing choice for a variety of contemporary lifestyles.






No comment