We blend human expertise with the intelligence of advanced AI design software to bring you inspired, detail-driven interior concepts every time.
This single-story modern farmhouse plan offers a sophisticated blend of comfort and style, designed for contemporary living. With its open-concept heart, dedicated private bedroom wings, and seamless indoor-outdoor flow, this home is an ideal sanctuary for families and entertainers alike seeking a functional yet elegant layout.
Floor Plans
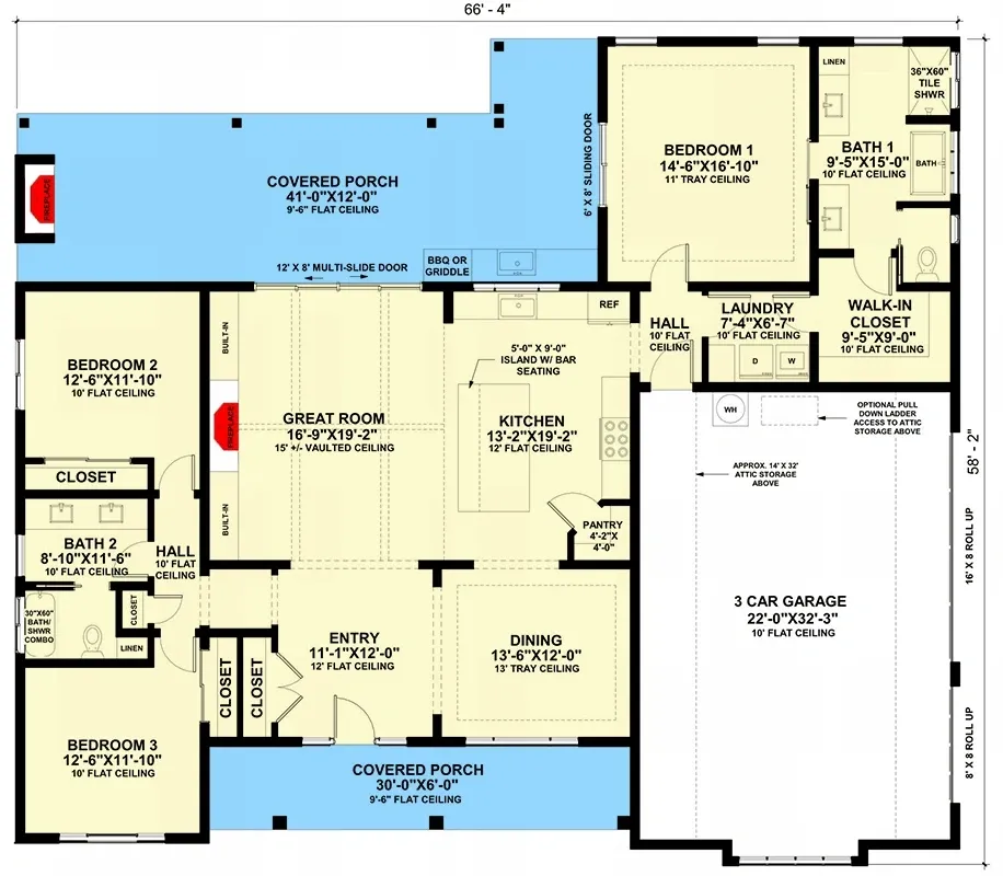
Main Level
The floor plan is centered around a spacious Great Room with a vaulted ceiling, which opens directly onto a large covered rear porch through multi-slide doors, creating a vast living and entertaining area. Adjacent to the Great Room is a gourmet kitchen with a large island and a walk-in pantry. A formal Dining Room with a tray ceiling is positioned near the entry. The popular split-bedroom design places the luxurious Primary Suite, complete with a tray ceiling, generous walk-in closet, and five-piece bath, on the right side of the home for ultimate privacy. Two secondary bedrooms share a full bath on the opposite side. A functional mudroom/laundry area connects the three-car garage to the main living spaces.
Exterior Images





The exterior embraces the modern farmhouse aesthetic with a balanced composition of gables and a welcoming front porch. A mix of board-and-batten siding and light-colored stucco is accented by wood timber posts and metal roof features over the dormers and front windows, adding textural interest. Black window frames provide a striking contrast, emphasizing the home's clean lines. The rear exterior is equally impressive, featuring a massive covered porch that spans much of the back of the house, ready for an outdoor kitchen.
Positives
- Split-bedroom layout ensures maximum privacy for the primary suite.
- Expansive rear covered porch with outdoor kitchen prep area seamlessly extends the living space.
- Three-car garage offers ample storage and vehicle space.
Points to Consider
- Formal dining room space may be underutilized by some modern lifestyles.
- Location of the shared bathroom for secondary bedrooms may be less convenient than a Jack-and-Jill arrangement for some families.
Other Facade Suggestions
Dark & Moody Modern Farmhouse
This striking variation utilizes a dark color scheme with charcoal board-and-batten siding and dark gray brick, creating a sophisticated and dramatic presence. The dark metal accents on the roof and black window frames enhance the moody aesthetic. Warm light from the interior and landscape lighting illuminates the architectural features, casting a welcoming glow. The structured landscaping with a dark paver pathway and uniform plantings complements the clean, modern lines. This style is perfect for those who appreciate a bold, contemporary take on the farmhouse look.
Light & Natural Modern Farmhouse
A lighter approach features light gray stucco paired with natural cedar shake siding on the gables, offering a warm and inviting contrast. The light gray metal roof accents and natural wood porch columns further soften the exterior. A flagstone pathway leads through a more naturalistic landscape with ornamental grasses and young birch trees, creating a serene and organic feel. This facade is ideal for homeowners who desire a harmonious blend of modern design and natural materials.
Contemporary Concrete Farmhouse
This facade leans into a more industrial aesthetic with the use of large format concrete panels as the primary cladding, accented by dark gray stucco. The simple, clean lines are emphasized by the lack of traditional siding texture. A sleek concrete pathway with gravel infill leads to the front door, flanked by drought-resistant plantings and sculptural agave, enhancing the modern, minimalist vibe. This style suits those seeking a cutting-edge, low-maintenance exterior.
Rustic Stone & Wood Farmhouse
Combining dark stained vertical wood siding with prominent stacked stone veneer, this variation exudes a rustic yet refined charm. The dark metal roof and window frames provide a modern touch, while the warm wood decking on the porch and steps adds an inviting element. The landscaping features a mix of concrete pavers, river stones, and expansive lawn, bridging the gap between rustic textures and modern landscaping. This design is perfect for those who want a home that feels grounded and connected to nature.
Classic White & Wood Farmhouse
The quintessential modern farmhouse look is achieved here with crisp white board-and-batten siding contrasted by a dark metal roof and black window frames. Natural wood timber posts and beams on the porch add a touch of warmth and authenticity. A gravel driveway and path lined with lavender and hydrangeas create a charming, timeless appeal. This facade is well-suited for those who love the traditional farmhouse aesthetic with a clean, modern update.
Warm Wood & White Farmhouse
This design beautifully balances white stucco with warm, horizontal wood siding on the gables, creating a visually rich and inviting exterior. The black window frames and dark roof elements provide necessary definition. A flagstone patio and walkway with a built-in fire pit and seating area in the foreground highlight the focus on outdoor living. The landscaping features sculptural yucca plants and low-maintenance shrubs, complementing the warm tones of the wood. This style is perfect for those who want a modern home with a cozy, inviting feel.
Industrial Concrete & Metal Farmhouse
A bold industrial interpretation, this facade features raw concrete panels paired with dark gray vertical metal siding. The extensive dark metal roofing and matching dark trim create a sleek, monochromatic look. Natural wood columns on the porch provide the only warm contrast. A precise concrete paver pathway with grass joints leads to the entry, flanked by disciplined plantings and ornamental grasses. This aesthetic is ideal for the minimalist homeowner who appreciates raw materials and clean, architectural forms.
Conclusion
This single-story modern farmhouse plan is a thoughtfully designed home that perfectly balances communal living spaces with private retreats. Its versatile layout, highlighted by the vaulted great room and extensive outdoor porch, makes it an excellent choice for a wide range of homeowners, from growing families to empty nesters looking for a stylish and functional forever home.






No comment