We blend human expertise with the intelligence of advanced AI design software to bring you inspired, detail-driven interior concepts every time.
This 1,950 square foot house plan offers a distinctive take on the modern farmhouse, utilizing a barn-like form to create a spacious and flexible living environment. The design features a reverse living arrangement, placing the primary communal spaces on the upper level to maximize views and architectural volume. With a versatile bedroom configuration and a strong connection to the outdoors through multiple decks and a screened porch, this home is well-suited for families or couples seeking a unique and functional design.
Floor Plans
Main Level
2nd Floor
3rd Floor
The floor plan is organized across two primary living levels with an additional detached carport structure. The ground level serves as the entry point, featuring a foyer that leads to two bedrooms, a full bathroom, and a laundry area. One of these bedrooms is designed as a flex room with a vaulted ceiling and space for a Murphy bed, allowing it to serve multiple functions. The upper level houses the main living spaces, including an open-concept kitchen with an island, a dining area, and a living room with a vaulted ceiling and a prominent wood ridge beam. The primary bedroom suite is also located on this level, complete with a walk-in closet and private bathroom. An "open to below" section near the living area creates a visual connection between the floors. Outdoor living is a key feature, with a large screened porch and deck on the upper level, and expansive deck space accessible from the ground floor.
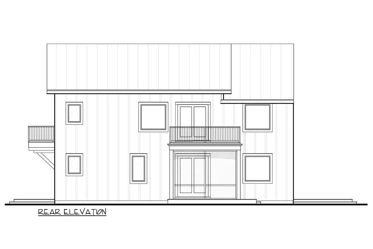
Exterior Images






The exterior is characterized by a simple, barn-inspired gable form clad in vertical board-and-batten siding. A standing-seam metal roof reinforces the modern agricultural aesthetic. Large windows and multi-panel sliding glass doors are strategically placed to provide ample natural light and facilitate indoor-outdoor flow. The design includes multiple outdoor spaces, such as a covered entry porch, a ground-level deck, an upper-level balcony, and a screened porch, adding depth and functionality to the facade. A separate, simple carport structure provides covered parking.
Interior Images


The interior emphasizes volume and open space, particularly on the upper living level where vaulted ceilings and an exposed wood ridge beam define the living and dining areas. The kitchen is open to these spaces, featuring an island for workspace and casual dining. Large expanses of glass bring in natural light and connect the interior with the surrounding views. The lower level also incorporates vaulted ceilings in the flex room, maintaining a sense of spaciousness throughout the home.
Positives
- Flexible 2-3 bedroom layout with a multi-functional flex room.
- Reverse living arrangement maximizes views for the main living areas.
- Extensive outdoor living spaces including decks and a screened porch.
- Vaulted ceilings on both levels create a spacious and airy feel.
- Distinctive modern barn aesthetic.
Points to Consider
- Reverse living requires ascending stairs to reach the main kitchen and living areas.
- Carport is detached from the main house structure.
Other Facade Suggestions
Dark Modern Barn
This variation presents a sleek, contemporary interpretation with dark charcoal or black board-and-batten siding and a matching metal roof. The dark exterior is contrasted by natural wood accents on the entry porch structure and door, adding warmth. The surrounding landscaping is neat and structured, featuring stepping stone pathways, ornamental grasses, and low-lying shrubs, complementing the modern aesthetic. This style is well-suited for those who appreciate a bold, minimalist, and sophisticated look.
Dramatic Monochrome
Similar to the dark modern barn, this facade uses a black monochrome palette but is presented with a different landscaping approach. The black siding and roof create a striking silhouette against the natural backdrop. A light wood entry porch and deck provide a strong visual counterpoint. The foreground features a manicured lawn, a gravel garden with river stones, and mature Japanese maples, creating a serene and curated environment. This option appeals to homeowners seeking a dramatic and high-contrast exterior.
Classic White Farmhouse with Stone
This facade offers a traditional farmhouse look with clean white board-and-batten siding and a light grey metal roof. A key feature is the addition of light-colored stone veneer on the entry porch columns and facade base, introducing texture and a rustic element. A wooden pergola over the side deck adds architectural interest. The landscaping is lush and varied, with hydrangeas, lavender, and other flowering plants bordering a stone pathway, perfect for those who prefer a bright, classic, and garden-oriented aesthetic.
Coastal Cedar Shake
Embracing a coastal vibe, this variation is clad in natural cedar shake siding, which will weather to a silvery-grey over time. A light grey metal roof and a pale blue front door enhance the beach-house feel. The landscaping is designed with sand, dune grasses, and potted palms, creating a relaxed, seaside atmosphere. This style is ideal for homes in coastal regions or for individuals who desire a rustic, textured, and relaxed exterior.
Modern Stucco and Wood
This design combines smooth, light beige stucco with horizontal wood accent panels around the entry and a section of the facade. The metal roof is a warm bronze tone. The combination of materials creates a contemporary and warm aesthetic. The landscaping features a xeriscape design with large concrete pavers, gravel, agave plants, and other drought-tolerant species, suitable for arid climates or those seeking a low-maintenance, modern look.
Bold Navy Barn
Featuring a deep navy blue board-and-batten siding, this facade makes a strong statement. The dark metal roof and natural wood entry porch with a contrasting red front door create a vibrant and classic color palette. The landscaping includes a brick pathway, hydrangeas with pink and white blooms, and a Japanese maple, offering a lush and colorful setting. This style is perfect for homeowners who want a traditional form with a bold and confident color scheme.
Earthy Sage Green
This variation utilizes a calming sage green color for the board-and-batten siding, blending harmoniously with a natural setting. The dark metal roof provides a grounding element, while the light wood door and entry structure add warmth. The landscaping is organic and naturalistic, with flagstone paths, ferns, hostas, and wildflowers, creating a peaceful and wooded feel. This design is well-suited for those who want their home to integrate seamlessly with nature.
Rustic Natural Wood
Showcasing the natural beauty of wood, this facade is clad in vertical wood siding with a clear or light stain, emphasizing the grain. A dark metal roof and rustic timber framing for the entry porch enhance the authentic barn character. The landscaping is natural and woodland-inspired, featuring log pathways, moss, ferns, and native flowering dogwood trees. This style appeals to those who seek a warm, rustic, and architecturally authentic home.
Conclusion
This barn-style modern farmhouse plan offers a unique combination of architectural character and functional design. Its reverse living layout, flexible bedroom options, and emphasis on indoor-outdoor living make it a compelling choice for a variety of lifestyles. The simple yet distinct form allows for a wide range of exterior customizations to suit individual preferences and site contexts.






No comment