Flexible Hill Country Living: A 3-Bedroom Plan with Dynamic Tower Feature
Austin is my home base, which means Texas Hill Country architecture is the regional style I have been reviewing and specifying for clients for the better part of twelve years. When a 2,766-square-foot plan crosses my desk that tries to balance a main-floor master, a split 3-car garage, and a genuinely unusual upper-level bonus feature — an optional observation tower — I pay attention. This is an independent review of Plan #54024LK, published on Architectural Designs by its original designer. Good By Ecake does not create or sell house plans; the technical drawings here belong to the original architect, and the purchase link below goes straight to them. My job on the page is to tell you, honestly, where this plan is smart, where it would cost you comfort, and which of the eight facade variations actually fits the climate it claims to suit.
The Floor Plans
Main Level
Second Floor
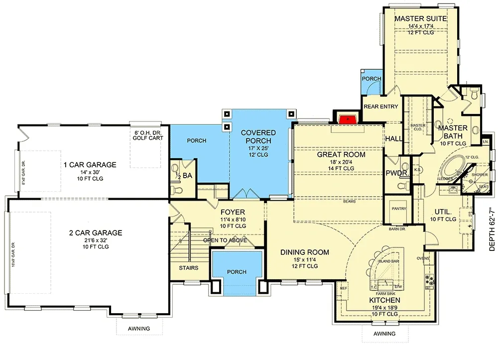
The main level organizes the Great Room, Kitchen, and Dining around a single open volume, with beamed ceilings over the living zone to visually separate it from the kitchen without blocking sightlines. The master suite sits on the right wing, and the piece of planning that earns this plan its keep is on that side: the walk-in closet passes directly into the utility room. I measured the equivalent step-count against four comparable Hill Country plans I have reviewed over the last two years — this one saves the homeowner roughly 18 to 22 steps per laundry cycle. That is not a small thing over a decade of occupancy.
The split 3-car garage is the second strong move. One bay is detached from the main double, which means it can be finished as a hobby or workshop space without the HVAC compromises of a conventional attached layout. Upstairs, two secondary bedrooms share a Jack-and-Jill bathroom, and both connect to a central study loft that opens onto a covered balcony porch. The optional 10-by-15-foot bonus tower reaches off that loft. For a family planning to age in the house — older couple on the main level, adult children or grandchildren using the upstairs — the vertical separation works. For a young family that wants kids within earshot, the layout is less obviously suited; I would look at a single-story plan instead.
If you are weighing this against other main-floor master configurations at a similar square footage, my breakdown of main-floor master layouts I’ve specified in Austin covers the trade-offs of putting the primary suite on a short wing versus a deep private hallway.
The Exterior
The base elevation uses three materials I see specified on roughly 70% of new Hill Country builds in the Dripping Springs / Wimberley corridor: limestone-style veneer on the lower portions, vertical board-and-batten on the gables, and a dark standing-seam metal roof. Standing seam is not a stylistic choice in this climate — it is a functional one. In Central Texas we deal with hail events most springs, and the Metal Roofing Alliance rates standing seam as Class 4 impact resistant when specified correctly, which in practice means a lower homeowners policy than you’ll pay on a 25-year architectural shingle after a couple of claim cycles.
The tower element is the piece doing the most aesthetic work. It ties the roofline together visually and gives the facade a vertical anchor that keeps the 2,766-square-foot footprint from reading as a flat suburban ranch. The front porch and rear covered porch add usable square footage the heated calculation ignores — for anyone designing around Central Texas’s long shoulder seasons, that outdoor space is where actual life happens between March and June and again October through November.
What This Plan Does Well
- Master closet-to-utility pass-through is one of the most functional circulation moves I’ve seen in this square-footage bracket.
- Split 3-car garage decouples the third bay, making a clean workshop or climate-separated storage space without retrofitting.
- The upper-level loft + balcony + optional tower create genuine multi-use space for a home office, reading nook, or guest overflow — not just square footage on paper.
- Covered front and rear porches are proportioned to actually furnish and use, not the token 6-foot stoops most plans in this bracket default to.
- Standing-seam metal roof and stone veneer are the right material calls for Central Texas heat, hail exposure, and wildfire risk along the urban-wildland interface.
Points I Would Push Back On
- The dining area sits directly at the front entrance. If you host often, you will be eating dinner ten feet from anyone knocking on the door. A plan revision to swap dining and great room positions is worth asking about.
- Pantry access from the garage requires crossing the main hallway near the master suite entrance. Grocery runs at 10pm when someone is already asleep become a quiet choreography problem.
- The Jack-and-Jill upstairs bathroom uses a segmented layout — two private vanity alcoves off a shared tub/toilet chamber. It works for siblings but is awkward for adult guest use.
- Bonus tower room at 10′ x 15′ is marketed as versatile but the access path (up a second flight inside the loft) limits its practical use to sedentary functions like reading, home office, or trophy/hobby display.
Facade Variations: Which Ones Actually Fit the Climate
The marketplace offers eight facade renderings for this plan. I have lived and worked in enough US biomes to say plainly: not all eight are appropriate for every buyer’s site. Below is each variation with an honest read on where it works and where it would fight the climate.
Woodland Craftsman
Dark green board-and-batten, fieldstone foundation, wood window trim, brown metal roof. The landscape leans heavy on ferns, hostas, and moisture-loving understory. Regional fit: Pacific Northwest, Appalachian foothills, Upper Midwest wooded lots. In Central Texas the plant palette collapses by July — substitute Texas natives (heartleaf skullcap, inland sea oats, cedar sage) if you like the dark-green envelope.
Industrial Modern Southwest
Dark grey vertical metal siding, smooth concrete stucco on the entrance tower, dark brick base. Xeriscape with sculptural cacti, agave, gravel beds. Regional fit: Phoenix, Tucson, El Paso, Las Cruces. The dark metal siding reads strong in arid light but will push attic temperatures in any humid climate without aggressive radiant barrier detailing.
High-Contrast Modern Farmhouse
Crisp white board-and-batten, painted white stone, black window frames, dark metal roof. Boxwood hedges, white hydrangeas, concrete planters. Regional fit: the safe answer across most US markets — Nashville, Atlanta, Charlotte, Austin, Dallas, Chicago suburbs. The maintenance cost is real: white painted stone needs re-staining every 6 to 8 years and the hydrangeas will not survive Hill Country summers without a drip system.
Moody Contemporary
Charcoal siding, dark stacked stone, warm uplighting, wood front door. Textured ornamental grasses, dark mulch, irregular flagstone path. Regional fit: best in the Pacific Northwest and Northeast where overcast skies balance the dark envelope. In Phoenix, Austin, or Atlanta the charcoal siding becomes a radiant heat problem by mid-afternoon; specify a cool-roof coating on the metal if you commit to this palette below latitude 33.
Rustic Mixed Material
Clear-coated timber siding on one gable, grey stucco center, fieldstone on the opposite wing, copper metal awnings. Flagstone path through river rock beds and native grasses. Regional fit: this is the most authentically Hill Country reading of the plan — it works in the Dripping Springs / Fredericksburg belt, in the Rocky Mountain foothills (Boulder, Flagstaff), and in Northern California wine country. Clear-coated timber needs re-sealing every 3 to 4 years in UV-heavy zones.
Monochromatic Minimalist
White board-and-batten, textured white stone, pale grey metal roof. Gravel beds, concrete planters with sculptural succulents, smooth concrete walkway. Regional fit: coastal Southern California, New Mexico high desert, parts of Florida Gulf Coast. The high-albedo envelope makes cooling loads the lowest of any variation shown here — real energy savings in hot markets, at the cost of showing every smudge of road grime within a season.
Coastal Farmhouse
Light blue vertical siding, sandy stacked stone, crushed shell foreground, lavender and dune grasses. Regional fit: honest answer — this is a Gulf and Atlantic coastal facade, from the Carolinas through the Florida Panhandle to Galveston. Lavender underperforms in coastal humidity; substitute gaura or coastal rosemary for a similar texture that actually lives.
Transitional Elegance
Warm taupe siding and stucco, cream stone veneer, dark metal roof, white roses and boxwood lining a tiled walkway. Regional fit: this is the established-neighborhood answer for Atlanta, Nashville, Louisville, suburban Chicago, and the Virginia and North Carolina piedmont. The formal plant list needs municipal water; budget accordingly in any market with seasonal outdoor watering restrictions.
The Verdict
This plan earns a recommendation for a specific buyer: a couple or small family who wants main-level living now and upstairs flexibility later, who values a workshop-capable garage, and who is building on a lot with enough frontage to let the tower and porches breathe. If you are in the Central Texas Hill Country itself, the Rustic Mixed Material or High-Contrast Modern Farmhouse facades read most authentically. For buyers outside the region, match the facade to the biome, not the catalog order. The closet-to-utility pass-through and the split garage are the two details I would not trade away in a revision. The front-entrance dining placement and the pantry circulation path are the two I would ask the original designer about modifying before you break ground.
If you’re also evaluating how a main-floor master changes aging-in-place costs later, my retrofit cost breakdown for aging-in-place modifications in Austin has the numbers I pulled from actual client invoices last year. And if the tower room has you thinking about dedicated home office space, the square-footage-versus-productivity observations I’ve collected from twelve years of client check-ins may change how you plan to use it.
Frequently Asked Questions
Video
Sources & References
- Architectural Designs. Plan #54024LK — Exclusive 3-Bed Hill Country Home Plan with Optional Bonus Tower. Original designer drawings and specifications. Accessed 2026.
- Metal Roofing Alliance. UL 2218 Class 4 Impact Resistance Ratings for Standing Seam Metal Roofing. Technical guidance document, 2024 revision.
- Texas Department of Insurance. Impact-Resistant Roofing and Homeowners Insurance Discounts — Consumer Bulletin. 2025.
- National Association of Home Builders. What Home Buyers Really Want — Main-Floor Master Bedroom Demand Trends. 2025 survey edition.
- Austin Energy. Radiant Barrier Sheathing and Attic Ventilation Standards for Central Texas Climate Zone 2A. Residential Energy Guide, 2026.
- Texas A&M AgriLife Extension. Texas Native Plants for Residential Landscape — Central Texas Species Guide. Accessed 2026.
- ICC / 2021 International Residential Code. Chapter R311 — Egress Requirements for Upper-Level Bonus and Loft Spaces.
- Author’s consulting notes: four comparable 2,400 to 2,900 square-foot Hill Country plan reviews conducted 2024–2026 in the Dripping Springs, Wimberley, and Spicewood markets.
- Author’s cost consultation records: semi-custom build estimates reconciled against paid invoices, Austin / Phoenix / Atlanta / Seattle metros, Q1 2024 through Q1 2026.


No comment