Plan Analysis: A Flexible 2,290 Sq. Ft. Modern Farmhouse with Split-Bedroom Layout
This house plan represents a contemporary take on the classic farmhouse, offering a highly functional single-level living experience with significant potential for expansion. At 2,290 heated square feet, the design prioritizes an open-concept flow while maintaining essential privacy through a thoughtfully arranged split-bedroom configuration. It is well-suited for families or homeowners seeking a balance of communal gathering spaces and private retreats, with the added benefit of a adaptable bonus level.
Floor Plans
Main Level
Optional Unfinished Upper Level
Optional Bedroom Suite
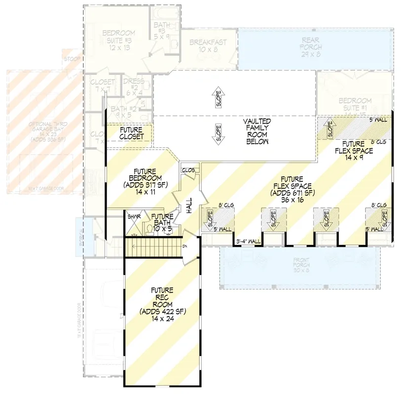
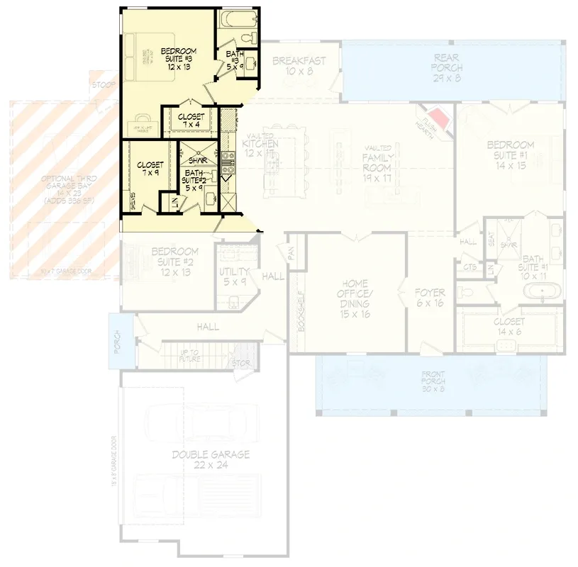
The main level floor plan is organized around a central, vaulted family room that serves as the home's hub, seamlessly connecting to the kitchen and an adjacent breakfast nook. This open living area benefits from direct access to a spacious rear porch, encouraging indoor-outdoor living. A flexible room near the foyer can function as a home office or a formal dining space, adding versatility. The layout's strength lies in its split-bedroom design; the primary suite is located on the right side of the plan, featuring a full bath with dual vanities, a separate tub and shower, and a large walk-in closet that conveniently connects directly to the laundry room. On the opposite side of the home, two secondary bedrooms each benefit from their own private ensuite bathroom, a rare and practical feature. A dedicated mudroom with built-in lockers and a bench provides an organized entry from the side-loading garage, which can be configured for two or three vehicles. A powder room is conveniently located for guests near the main living areas. The plan also includes a staircase leading to an optional unfinished upper level, offering substantial space for a future recreation room, an additional bedroom, and a bathroom.
Exterior Images







The exterior design embraces the modern farmhouse aesthetic through a combination of materials and architectural forms. The facade is characterized by a mix of vertical board-and-batten siding and a section of contrasting material, such as natural wood, creating visual interest. Multiple gable rooflines, including three prominent shed dormers, add depth and character to the roofscape, which is shown with a metal roofing material. A wide front porch with timber columns provides a welcoming entry point and enhances the home's curb appeal. The side-entry garage design ensures the garage doors do not dominate the front elevation. The rear of the home features a substantial covered porch that spans a significant portion of the back, offering a protected outdoor living area.
Positives
- All three bedrooms feature private ensuite bathrooms, providing excellent privacy and convenience for family members and guests.
- The primary suite's walk-in closet has a direct pass-through to the laundry room, a highly desirable functional detail.
- The split-bedroom layout effectively separates the primary suite from the secondary bedrooms.
- A dedicated mudroom with built-ins ensures an organized entry from the garage.
- The optional unfinished upper level offers significant potential for future expansion, allowing the home to grow with the owner's needs.
Points to Consider
- The designated 'Home Office/Dining' space may not be sized adequately for large formal dining sets, making the breakfast nook the primary eating area.
- Developing the optional upstairs bonus space and adding the third garage bay will significantly increase construction costs over the base plan.
Other Facade Suggestions
Mountain Craftsman
This variation presents a rustic, textured aesthetic by combining warm horizontal cedar siding with a rugged stone veneer base and chimney. Copper gutters and downspouts add a premium, crafted detail against the dark metal roof. The landscaping complements the natural materials with flagstone pathways, large boulder accents, and lush, shade-tolerant plantings like ferns and hostas. This style is well-suited for homeowners who prefer an earthy, substantial look that blends harmoniously with a wooded or mountain setting.
Industrial Modern
For a bolder, more contemporary statement, this facade utilizes weathered corten steel panels on the prominent gable section, creating a striking contrast with the dark brick on the main body of the house. Exposed steel I-beam columns support the porch roof, reinforcing the industrial theme. The surrounding landscape is minimalist and xeric, featuring gravel beds, concrete pavers, and architectural plants such as agave and yucca. This design appeals to those who appreciate edgy, modern architecture with a focus on raw materials and texture.
High-Contrast Modern Farmhouse
This approach uses a sharp contrast in materials to define different architectural volumes. The main body of the house is clad in dark charcoal board-and-batten, while the projecting gable section features light-toned natural wood vertical siding. This graphic juxtaposition is clean and modern. The landscaping is structured yet natural, with a gravel driveway, birch trees that echo the vertical siding, and mass plantings of ornamental grasses. This style is perfect for those seeking a modern, visually dynamic interpretation of the farmhouse.
Scandinavian Minimalist
Achieving a clean and reductive look, this facade features smooth white stucco walls accented by stark black window frames and a black metal roof. The design is devoid of excessive trim or ornamentation, relying on proportion and simple forms. The exterior environment is equally minimalist, with large concrete pavers, dark river stones, and geometric concrete planters holding sculptural plants like snake plants. This style is ideal for purists of minimalist design who value simplicity, clean lines, and a monochromatic palette.
Shingle Style Farmhouse
Blending traditional farmhouse forms with Craftsman details, this facade uses natural cedar shake siding on the main gable and horizontal lap siding on the rest of the home. A stone veneer base and robust wood columns add warmth and texture. The landscaping is classic and inviting, with a paver driveway, stone steps, and extensive garden beds filled with flowering plants like hydrangeas and coneflowers. This aesthetic is well-suited for homeowners who desire a timeless, comfortable, and handcrafted look.
Classic White Farmhouse
This is the quintessential modern farmhouse look, featuring crisp white board-and-batten siding across the entire facade. Natural wood columns, a matching wood front door, and a dark metal roof provide the classic contrast. The landscaping is neat and traditional, with a manicured lawn, a slate walkway, perfectly shaped boxwoods, and white flowering shrubs like Annabelle hydrangeas. This style appeals to those who want a bright, cheerful, and enduringly popular exterior design.
Conclusion
This house plan is a well-executed example of modern family-oriented design. Its single-level layout is practical and efficient, while the split-bedroom configuration with ensuite baths for all rooms is a significant functional advantage. The open-concept communal areas are well-proportioned, and the potential for future expansion in the bonus level adds considerable long-term value. It is a strong candidate for those seeking a versatile, comfortable, and thoughtfully organized home.






No comment