A Functional & Spacious 4-Bedroom Modern Farmhouse Plan Review
This single-story Modern Farmhouse plan offers a blend of classic aesthetic appeal and contemporary functionality. With a sprawling U-shaped layout centered around outdoor living, it provides dedicated zones for privacy, work, and gathering, making it well-suited for families or those who prioritize defined spaces.
Floor Plans
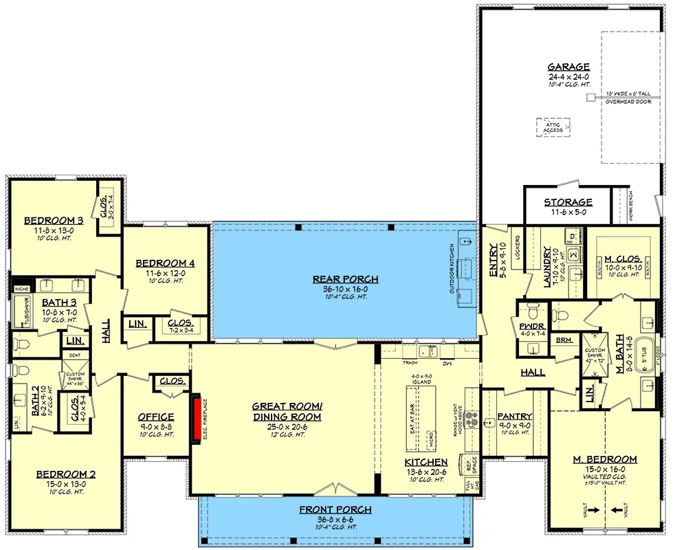
Main Floor Plan

Stairs Plan

The single-story floor plan features a well-defined U-shape centered around an expansive rear porch. The heart of the home is an open-concept great room, kitchen, and dining area with vaulted ceilings. A split-bedroom design places the primary suite on the right wing for privacy, complete with a five-fixture bath, large walk-in closet, and direct access to the laundry room. The left wing houses three secondary bedrooms; one with a private en-suite and two sharing a Jack-and-Jill bath. A dedicated home office is also located in this wing near the front entry. The functional mudroom connects the side-entry 2-car garage with storage to the main living areas.
Exterior Images









The exterior showcases a quintessential modern farmhouse style with a symmetrical front facade. Key elements include board-and-batten siding (with options for brick veneer depicted), a dark metal roof accent over the front porch, and large windows that specify ample natural light. The side-entry garage maintains a clean curb appeal by keeping garage doors off the front elevation. The design's U-shape creates a sheltered rear courtyard for outdoor living.
Positives
- Split-bedroom layout ensures acoustic privacy for the primary suite.
- Direct connection from the primary closet to the laundry room adds significant operational convenience.
- Expansive rear porch measures over 36 feet in width and includes a built-in outdoor kitchen station.
- Well-organized mudroom with built-in lockers and a separate storage room off the garage.
- All bedrooms have direct access to a bathroom, either private or semi-private.
Points to Consider
- The home office location within the secondary bedroom wing may not provide optimal sound isolation for work.
- The U-shaped footprint increases the exterior envelope area relative to the floor area, which can impact construction costs and thermal performance.
Conclusion
This Modern Farmhouse plan is a thoughtful and functional design that successfully balances private retreats with open communal spaces. Its strong connection to the rear outdoor living area and practical service features like the laundry-to-closet pass-through make it a well-considered option for contemporary living standards. The layout's clear zoning is its primary strength.






No comment