We blend human expertise with the intelligence of advanced AI design software to bring you inspired, detail-driven interior concepts every time.
This 3,171 square foot house plan presents a contemporary take on the classic farmhouse style. It features a highly functional two-story layout emphasizing main-level living, suitable for families or those desiring a primary suite on the ground floor. The design balances open shared spaces with dedicated private zones and includes significant outdoor living areas.
Floor Plans
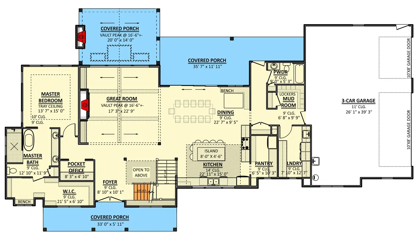
Main Level
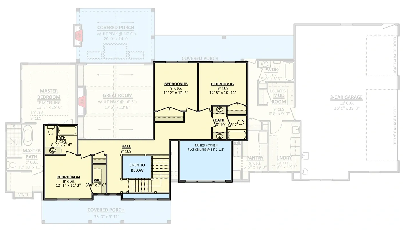
2nd Floor
The main level centers around an open-concept great room featuring a vaulted ceiling with a 16'-6" peak, connecting directly to the spacious kitchen and dining area. A significant functional strength of this plan is the primary suite's isolation in the left wing, which features a substantial walk-in closet that provides direct, convenient access to the central laundry room. The service wing includes a three-car side-entry garage leading into a mudroom equipped with lockers and a nearby powder room. A pocket office located near the foyer offers a dedicated workspace apart from the main living zones. Upstairs, three additional bedrooms are arranged efficiently; one includes a private en-suite bathroom, while the other two share a hall bathroom. The upper level also features an open landing looking down into the foyer and great room below.
Exterior Images









The exterior design adheres to modern farmhouse principles, utilizing a combination of white horizontal siding and vertical board-and-batten textures in the standard elevation. Gabled rooflines dominate the facade, accented by contrasting dark metal roofing over the front porch and shed dormers. The three-car garage is oriented to the side, which helps maintain a balanced front elevation focused on the entry porch. Timber posts and wood front doors add architectural contrast to the predominantly white siding and dark window frames.
Interior Images




Interior rendered views indicate the spatial impact of the vaulted great room, showing how the ceiling volume enhances the central living area. The connection between the indoor living space and the rear covered porch is facilitated by large sliding glass doors, promoting indoor-outdoor flow. The kitchen is designed with a large central island (approx. 4'x8') supporting the open layout. The primary bathroom layout includes separate vanities, a freestanding tub, and a large walk-in shower.
Positives
- Primary bedroom closet has direct access to the laundry room, highly practical for workflow.
- Isolated pocket office on the main floor is ideal for remote work.
- Three-car garage with dedicated mudroom and lockers for organization.
- Extensive covered porch areas on the front, side, and rear expand usable living space.
- One upstairs bedroom features a private en-suite bath, suitable for guests or older children.
Points to Consider
- Bedrooms and on the second floor share a hall bathroom rather than a direct Jack-and-Jill arrangement.
- The 'Raised Kitchen' notation on the second-floor plan likely indicates open ceiling space from below, but requires verification with builder.
Other Facade Suggestions
Dark Modern Industrial
This variation adopts a striking monochromatic dark grey palette for the siding and metal roofing, giving the farmhouse structure a distinctly modern, industrial edge. The black window frames and dark metal porch roof emphasize the sharp lines of the gables. The surrounding landscaping is minimalist and structural, featuring spiky architectural plants, river stones, and a precise concrete pathway edged with integrated LED lighting, matching the contemporary rigor of the facade. This style is suited for homeowners seeking a bold, minimalist aesthetic departing from traditional warm tones.
Rustic Timber and Stone
A heavy emphasis on natural materials transforms the plan into a rustic lodge aesthetic in this iteration. Dark wood vertical siding is paired with extensive stone veneer on the foundation and chimney elements. Prominent timber trusses frame the gables and porch entry, adding significant architectural weight and texture. The landscaping is lush and woodland-inspired, with ferns, hostas, and large boulders flanking a natural flagstone walkway. This is ideal for those preferring a warm, textured exterior that blends into wooded environments.
Contemporary Warm Wood
This facade balances warmth and modernity by using horizontal wood cladding on the main gables against neutral grey stucco walls. The dark metal roof and window frames provide necessary contrast. The landscaping is composed of soft, flowing drifts of lavender and ornamental grasses bordering large, square paver stepping stones. The pathway is interplanted with ground cover, softening the hardscape and complementing the warm wood tones of the house. It is well-suited for those desiring a contemporary look that prioritizes natural materials.
Natural Wood and Copper
Utilizing vertical, knotty wood siding with a clear finish, this option highlights natural grain patterns. A stone water table anchors the base of the house. Copper-toned metal roofing over the porch adds a premium element that will patina over time, working well with the wood tones. The landscaping is abundant with hydrangeas and structured low hedges, creating a classic garden feel around a natural stone slab pathway. This is an excellent choice for homeowners who appreciate the authentic texture of natural wood.
Coastal Cedar Shake
This iteration uses white cedar shake siding for a textured appearance reminiscent of coastal architecture. Natural wood double doors and a light grey metal porch roof provide subtle contrast to the bright white facade. The surroundings are appropriately beach-inspired, featuring sand dunes, dune grasses, and large white hydrangea bushes lining a crushed oyster shell or gravel driveway. This style is ideal for coastal properties or buyers seeking a bright, textured aesthetic.
Desert Southwest Stucco
Adapted for an arid climate, this facade features warm terracotta-colored stucco paired with stacked stone veneer accents on gables and columns. The dark metal roof provides a strong cap to the warm earth tones. The landscaping is xeriscaped, utilizing gravel mulch, varied cacti, agaves, and barrel cactus, along with a concrete paver walkway, reflecting a water-conscious design ethos. This is specifically designed for desert environments or homeowners looking for an earthy palette.
Ultra-Modern Minimalist
This facade completely removes traditional farmhouse textures in favor of a stark, all-white smooth stucco finish. Roof overhangs are minimized, and windows are frameless or minimal, creating pure geometric forms. The entry is marked by a simple flush wood door. The landscaping is severe and highly manicured, featuring a perfectly flat lawn, manicured bonsai-style trees, pencil hollies, and a floating white concrete slab pathway with underlighting. This is geared toward devotees of extreme minimalism and abstract architectural forms.
Conclusion
This 3,171 square foot Modern Farmhouse plan offers a well-organized layout that addresses contemporary living needs. The connection between the primary closet and laundry room, the dedicated home office, and the ample garage space are significant functional benefits. The plan's simple massing allows for a wide variety of exterior facade treatments, making it adaptable to diverse geographic locations and aesthetic preferences.






No comment