Architectural Review: Transitional Southern Farmhouse with Exceptional Flow and Outdoor Integration
This 2,250 square foot house plan embodies the transitional Southern farmhouse style, blending traditional forms with modern, open-concept living. The single-story layout is designed for efficiency and flow, making it suitable for a wide range of homeowners. Key features include a split-bedroom configuration for privacy, expansive outdoor living areas with a planned kitchen, and flexible space in the form of an optional bonus room over the garage.
Floor Plans
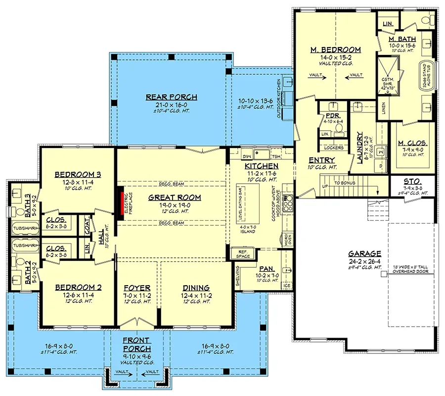
Main Leve
Optionally Finished Bonus Room
Basement Stairs Location
The main level floor plan is organized around a central open-concept living area. The foyer provides a direct sightline through the great room to the rear porch, establishing an immediate connection to the outdoors. The great room, featuring a fireplace and decorative beams, flows logically into the kitchen and dining area. The kitchen is equipped with a large island and is supported by a substantial walk-in pantry conveniently situated between the kitchen and dining spaces. A split-bedroom design places the master suite on the right wing for privacy; it includes a vaulted ceiling, a five-fixture bathroom, and a direct connection to the laundry room via the walk-in closet. Two secondary bedrooms, each with a private full bath and walk-in closet, are located on the left wing. The service entry from the side-loading two-car garage includes a mudroom area with lockers, a powder room, and access to the laundry room, creating a highly functional family entrance. A significant aspect of the plan is the extensive rear porch, accessible from the great room and master suite, which includes a dedicated space for an outdoor kitchen. An optional 407 square foot bonus room above the garage offers flexible space with its own full bathroom.
Exterior Images










The exterior design is a clear example of the transitional farmhouse style. It utilizes a mixed-material palette of painted brick and vertical board-and-batten siding. The composition is balanced by multiple gables and shed dormers that break up the roofline. A metal roof is used on the front porch and accent awnings, contrasting with the main shingle roof. The deep front porch, framed by columns, provides a defined entry point, while the large rear porch significantly extends the living space outdoors. The side-entry garage helps to maintain a visually clean front elevation.
Positives
- Highly Functional Service Zone: The connection from the garage through the mudroom to the laundry, and then directly into the master closet, is an excellent workflow feature.
- En-suite Bathrooms: Each of the three bedrooms has its own private full bathroom, offering enhanced privacy and convenience.
- Extensive Outdoor Living: The large rear porch with a pre-planned outdoor kitchen significantly increases the usable living area.
- Split-Bedroom Layout: The separation of the master suite from the secondary bedrooms offers a well-defined private zone for the homeowners.
- Walk-in Pantry Location: The pantry is strategically placed to serve both the kitchen and the dining area effectively.
Points to Consider
- Dining Area Definition: The dining space is open to the foyer and great room; those requiring a more formal, enclosed dining room may find this layout too open.
- Garage Depth: While a standard two-car garage, the depth may be a consideration for those with longer vehicles or a need for significant workshop storage.
Conclusion
This transitional Southern farmhouse plan offers a well-conceived layout that balances open communal spaces with distinct private retreats. The emphasis on highly functional service areas, such as the mudroom and laundry connection, alongside the generous outdoor living porches, makes it a practical design for modern living. The optional bonus room adds a valuable layer of adaptability for future space requirements.





No comment