The Versatile Transitional Farmhouse: A Detailed Look at a 2,292 Sq. Ft. Ranch Plan
This single-story Transitional Farmhouse Ranch plan offers a functional 2,292 square feet of heated living space. The design features a split-bedroom layout for privacy and an open-concept core, making it well-suited for families or those seeking single-level living. The plan's flexibility is enhanced by options for a finished bonus room over the garage and a full basement, allowing the home to expand to meet changing needs.
Floor Plans
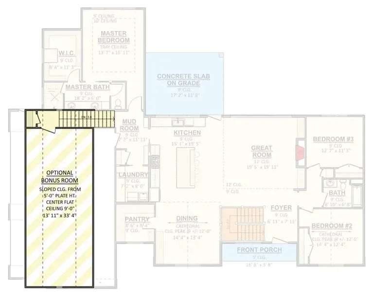
Main Level
Optional Finished Bonus Room
Optional Finished Basement Level
The main level is organized around a central open-concept living area. The great room, with its 12' ceiling, flows directly into the chef's kitchen and a dining area highlighted by a cathedral ceiling. A split-bedroom configuration places the master suite on the left side of the home, offering a private retreat with a tray ceiling, a spacious bathroom, and a large walk-in closet. Two secondary bedrooms and a shared bath are located on the opposite wing. A key functional element is the dedicated service zone near the 3-car garage, comprising a substantial mudroom with built-in storage potential, a separate laundry room, and a walk-in pantry convenient to the kitchen. The plan also includes options for a 520 sq. ft. bonus room above the garage and a 1,046 sq. ft. finished basement with a rec room, wet bar, additional bedroom, and bath.
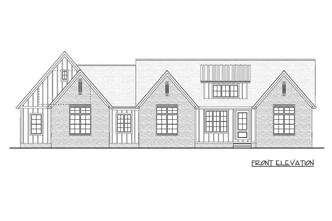
Exterior Images










The exterior presents a balanced Transitional Farmhouse aesthetic. The facade utilizes a mix of materials, including stone veneer and board-and-batten siding, to create visual interest. Multiple gables, metal roof accents over the front window and shed dormer, and a welcoming covered front porch contribute to the design's structure. The rear of the home features a covered porch that extends the living space outdoors, accessible from the main living area. The side-entry 3-car garage helps maintain a clean front elevation.
Interior Images








The interior layout is designed to maximize the sense of space and light. The great room's 12' ceiling and the dining area's cathedral ceiling create significant vertical volume. Large windows are planned throughout the rear of the home, allowing for ample natural light and views of the backyard. The kitchen is laid out for efficiency with a large central island and immediate access to the dining area and pantry. The master bathroom is configured with dual vanities, a private toilet compartment, and a large shower. The potential for a finished basement adds considerable living and entertainment space, further enhancing the home's functionality.
Positives
- Split-bedroom layout ensures privacy for the master suite.
- Well-defined service entry with a large mudroom, laundry, and pantry.
- Significant expansion potential with the optional bonus room and basement.
Points to Consider
- Access to the master walk-in closet is through the bathroom, which may not be preferred by all.
- The open dining area is less defined than a formal dining room.
Conclusion
This Transitional Farmhouse plan is a well-considered design that balances open communal spaces with private retreats. Its efficient single-level layout, combined with the ability to add significant square footage through optional finished areas, makes it a versatile choice for a wide range of homeowners. The practical placement of service areas and the thoughtful use of ceiling heights add to the plan's overall functionality and appeal.





No comment