A Detailed Review of a 2,191 Sq. Ft. Modern Farmhouse Plan with Split Bedrooms and a Home Office
This 2,191 square foot single-story house plan presents a contemporary take on the classic farmhouse aesthetic. Designed for efficient living, the layout balances wide-open communal spaces with distinct private retreats. The configuration is particularly well-suited for families or individuals seeking a functional work-from-home setup alongside a split-bedroom design for maximum privacy. Its architectural profile blends modern materials with traditional forms to create a distinct presence.
Floor Plans
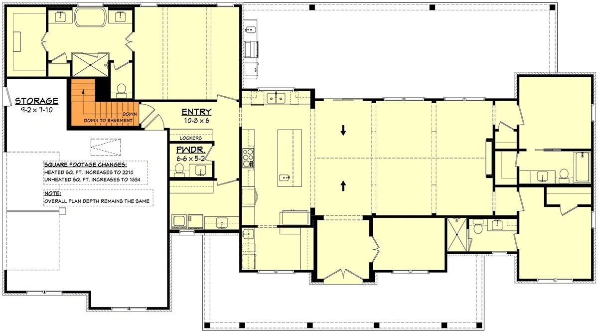
Main Level
Basement Stairs Location
The core of this single-story plan is the open-concept great room, kitchen, and dining area, anchored by a vaulted ceiling that spans from the foyer. The kitchen features an oversized island and is supported by a substantial walk-in pantry and an adjacent butler's pantry area. A notable strength of the layout is the split-bedroom configuration. The primary suite occupies the entire left wing, offering direct connection through its expansive walk-in closet to the laundry room and mudroom area, creating a highly practical utility loop. Two secondary bedrooms are located on the opposing right wing, sharing a compartmented Jack-and-Jill bathroom (Bath 3), while a separate powder room serves guests near the entryway. A dedicated home office is strategically positioned at the front of the house, separate from the main living areas for acoustic privacy. The design also prioritizes outdoor living with a large rear porch accessible from the great room and primary bedroom, equipped with hookups for an outdoor kitchen.
Exterior Images









The exterior architecture defines a modern farmhouse aesthetic through a varied material palette and clean lines. The front elevation combines vertical siding—likely board-and-batten—with horizontal wood accent planks and stucco or masonry elements on the flanking wings. A dark standing-seam metal roof contrasts sharply with the lighter wall finishes. Three prominent dormers with shed roofs add vertical interest and break up the roofline above the expansive front porch, which features timber columns and stone bases. Black-framed windows and large double entry doors provide a contemporary edge to the traditional form.
Positives
- The split-bedroom layout ensures maximum privacy for the primary suite wing.
- An excellent utility flow connects the primary closet directly to the laundry room and mudroom.
- A dedicated home office is positioned at the front of the house, isolated from general living noise.
Points to Consider
- The side-entry garage configuration requires a wider lot to accommodate the necessary driveway turn-in.
- The two secondary bedrooms share a single Jack-and-Jill bathroom, which may limit privacy for older children or long-term guests in that wing.
Other Facade Suggestions
Rustic Craftsman Lodge
This variation adopts a rustic Craftsman aesthetic, utilizing natural cedar shake siding paired with substantial stone veneer on the foundation and porch columns. Heavy timber posts and beams support the dark standing-seam metal roof, adding structural weight and warmth. The surrounding landscaping is lush and dense, featuring ferns, mature rhododendrons, and a Japanese maple, flanked by an irregular flagstone pathway that leads to the wood front door. Integrated low-voltage lighting highlights the stone texture. This facade is ideal for homeowners who prefer a warm, lodge-like feel and want their home to integrate organically with a wooded or natural environment.
Modern High-Contrast Minimalist
A striking modern interpretation creates a high-contrast visual through an almost exclusively black exterior scheme, including the vertical board-and-batten siding and metal roof. Crisp white columns, trim, and front doors provide a sharp definition against the dark facade. The exterior environment is rigorously manicured and geometric, featuring low boxwood hedges framing beds of white gravel. Large, architectural concrete planters holding agave reinforce the sculptural feel, alongside a stark white concrete walkway. This style is suited for those who appreciate bold minimalism and a highly structured, graphic architectural statement.
Mediterranean Southwest
Shifting towards a Mediterranean or Southwestern influence, this facade features smooth, warm beige stucco walls complemented by a distinctive metal roof with an aged green patina finish. Natural, rough-hewn wood columns and a matching front door add organic texture. The landscaping is drought-tolerant and naturalistic, utilizing mounds of lavender, rosemary, and native grasses interspersed with large landscape boulders. Pathways are formed from decomposed granite and irregular stone slabs. This design is perfect for arid climates or for homeowners seeking an earthy, relaxed, and textured exterior that blends with dry landscapes.
Industrial Modern
This industrial-modern approach utilizes dark grey horizontal siding contrasting with sections of weathered metal panels that have a patinaed or Corten steel appearance. The dark metal roof and substantial industrial-style pendant lights on the porch reinforce the utilitarian aesthetic. The landscaping features board-formed concrete retaining walls and Corten steel planter boxes filled with architectural plants like yucca and agave, set against gravel ground cover. A floating concrete slab walkway leads to the entrance. This aesthetic is well-suited for urban infill lots or environments where a rugged, contemporary, and low-maintenance exterior is desired.
Scandinavian Japandi
Blending Scandinavian and Japanese minimalism, this facade combines light-toned vertical wood cladding with smooth concrete or light grey stucco panels. The dark metal roof, fascia, and window frames provide necessary definition and grounding. The exterior surroundings are minimalist and serene, featuring low concrete retaining walls and terraced planting beds filled with ornamental grasses and architectural plants. A walkway composed of large concrete pavers separated by grass strips leads to the entry. This style appeals to lovers of clean lines, natural materials, and a calm, understated modern elegance.
Conclusion
This 2,191 square foot plan is a strong contender for those prioritizing functional flow in a single-story layout. The strategic separation of private and public zones, combined with the highly efficient utility loop connecting the master suite to laundry facilities, resolves many common daily logistical challenges. It is an architecturally sound design suited for modern living requirements.






No comment