We blend human expertise with the intelligence of advanced AI design software to bring you inspired, detail-driven interior concepts every time.
This single-story residence presents a contemporary interpretation of the transitional farmhouse aesthetic, encompassing 2,594 heated square feet. The design utilizes a split-bedroom configuration to maximize privacy while centering daily life around open-concept communal spaces. It is a highly functional layout suited for families or homeowners seeking single-level living with distinct zones for entertainment, work, and rest, distinguished by practical features such as an expansive scullery.
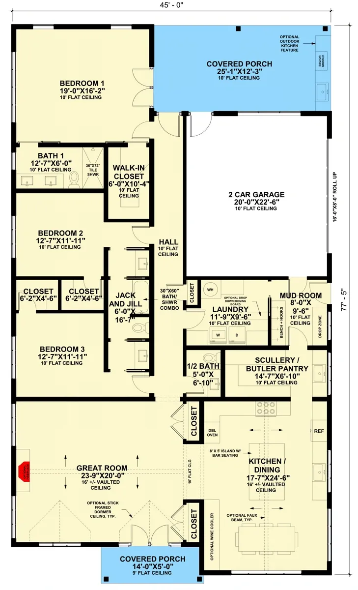
Floor Plans
Main Level
The floor plan is structured around a central, vaulted open-concept living core comprising the Great Room, Kitchen, and Dining area. A defining functional asset is the expansive Scullery/Butler Pantry (14'-7" x 6'-10") located directly behind the main kitchen; it provides extensive prep space, additional storage, a second sink, and room for double ovens, allowing the main kitchen to remain uncluttered during entertaining. The layout employs a split-bedroom design ensuring acoustic privacy for the Primary Suite, which features a 10' ceiling, a substantial walk-in closet, a five-fixture bath, and direct access to the large rear covered porch. The opposite wing houses two secondary bedrooms, each with a walk-in closet, sharing a compartmentalized Jack-and-Jill bathroom with separate vanity areas. Service zones are efficiently clustered near the 2-car garage entrance, including a mudroom with built-in bench and hooks, a conveniently located powder room, and a dedicated laundry room with sink and counter space. Outdoor living is emphasized with a massive rear covered porch accessible from the Great Room and Primary Bedroom, plus a smaller side porch off the dining area with potential for an outdoor kitchen.
Exterior Images




The exterior architectural language is defined by a transitional farmhouse aesthetic, utilizing a varied material palette that typically includes vertical board-and-batten siding paired with brick or stone veneer foundations and accents. Multiple gables with differing pitches create visual depth and break up the roofline, which features architectural shingles accented by metal roofing over key areas like the front entry porch. The design emphasizes connection to the outdoors, featuring a welcoming front covered porch with varied column options (timber or painted) and extensive covered outdoor living areas at the rear and side of the structure, providing significant shaded square footage for exterior furnishing.
Positives
- Expansive Scullery/Butler Pantry significantly enhances kitchen functionality and storage.
- Split-bedroom layout offers maximum privacy for the Primary Suite.
- Direct access from the Primary Suite to the large rear covered porch.
- Efficient Jack-and-Jill bathroom design with separate vanities for secondary bedrooms.
- Large mudroom with dedicated drop zone and adjacent powder room.
Points to Consider
- Garage entry traffic flows near the pantry/scullery zone before reaching the main kitchen.
- The side covered porch off the dining area is relatively narrow compared to the rear porch.
Other Facade Suggestions
Mediterranean Revival with Rustic Accents
This facade presents a warm Mediterranean revival aesthetic, combining smooth tan stucco with rich, vertical wood siding accents on the prominent left gable. The terracotta-toned tiled roof and exposed heavy timber lintels over the porch add rustic warmth. The landscaping complements this style with drought-tolerant plantings, including olive trees, lavender banks, and ornamental grasses lining stone-clad retaining walls. A flagstone pathway leads to the substantial wooden double doors. This elevation is suited for arid climates or homeowners appreciating a warm, villa-inspired exterior.
Minimalist Modern Farmhouse
A striking example of minimalist modern design, this facade features stark white stucco walls contrasting sharply with a light grey standing-seam metal roof. Large, unadorned picture windows dominate the elevations, prioritizing natural light and clean architectural lines. The landscaping is highly structured and geometrical, utilizing raw concrete retaining walls, manicured Japanese maples, and a precise large-format concrete paver walkway set in manicured grass. This style is ideal for those who prefer a sleek, uncluttered, and contemporary architectural statement.
Rustic Traditional European
This elevation adopts a rustic traditional style, utilizing a heavy blend of textures. One wing features rough-cut fieldstone in warm earth tones, contrasting with the smoother, large-format cream stone veneer on the adjacent wing. Dark bronze windows and a dark slate-style roof anchor the design. The landscaping is lush and naturalistic, with ferns, hostas, and large boulders bordering a crushed stone driveway. A dark wood column porch welcomes visitors. This look suits homeowners seeking a substantial, established, and texture-rich exterior.
Monochromatic Dark Farmhouse
A bold monochromatic interpretation, this facade is rendered entirely in dark charcoal and black tones. Black vertical siding complements dark painted brick, unified by a black standing-seam metal roof and black window frames. The dramatic exterior is softened by textured landscaping featuring dark foliage plants like coral bells and ornamental grasses, alongside contrasting green hydrangeas, all set against dark mulch and stone retaining walls. A dark paver path leads to the entry. This edgy aesthetic appeals to those looking for a powerful, modern, and moody architectural presence.
Contemporary Industrial Rustic
This facade blends industrial and rustic modern elements seamlessly. It features dark-stained vertical wood siding contrasted against large, smooth concrete panels on the right wing. A dark metal roof and steel columns on the porch reinforce the industrial edge. The landscaping is xeriscaped and architectural, highlighted by a sleek linear water feature paralleling the large-format slate walkway. Drought-resistant plantings like agaves and ornamental grasses complete the modern desert aesthetic. This style is perfect for a design-forward homeowner appreciating raw materials and clean geometry.
Modern Coastal Farmhouse
This variation offers a crisp modern farmhouse look with coastal influences. It utilizes clean white board-and-batten siding on one wing, contrasted by natural cedar shake siding on the other, and a central dark grey board-and-batten accent gable. The landscaping is structured yet lush, with tiered concrete retaining walls housing hydrangeas, ornamental grasses, and integrated LED strip lighting illuminating the concrete paver path. This bright and welcoming aesthetic is well-suited for coastal or suburban settings requiring a blend of classic warmth and modern crispness.
Rustic Mountain Lodge
Embracing a rugged mountain lodge aesthetic, this facade features heavily textured reclaimed barn wood siding paired with stacked fieldstone. A dark bronze standing-seam metal roof covers the porch and main gables, adding durability and a rustic-industrial touch. Timber framing details on the porch enhance the craftsmanship feel. The landscaping includes a bubbling stone water feature, generous hydrangeas, and ornamental grasses lining a paver walkway. This style is ideal for rural settings or homeowners who desire a strong connection to natural materials and rustic warmth.
Moody Transitional Farmhouse
Similar to other dark iterations but with subtle textural shifts, this facade pairs black vertical siding with dark charcoal painted brick. The entire structure is capped with a black roof and black trim, creating a cohesive, moody appearance. The landscaping provides deep color contrast with dark purple smoke bushes and ornamental grasses flanking a dark slate walkway. This sophisticated, monochromatic look is suited for those seeking a dramatic and contemporary curb appeal that stands out from traditional white farmhouses.
High-Contrast Contemporary Luxury
This highly contemporary elevation utilizes stark contrasts for visual impact. Dark, charred-wood style vertical siding on the left balances against large-format white porcelain panels with grey marble veining on the right. A prominent modern glass and steel canopy covers the entry, protecting an oversized contemporary metal door. The landscaping is precise and manicured, featuring low stone retaining walls, integrated linear lighting, sculptural cloud-pruned trees, and agave plants. This luxurious, high-contrast style is targeted at homeowners desiring a cutting-edge, gallery-like exterior.
Conclusion
This 2,594 square foot house plan offers a highly practical single-story layout that balances open communal spaces with private retreats. The inclusion of a large scullery and a well-organized mudroom addresses the functional requirements of modern living. With its versatile exterior options and efficient split-bedroom design, it is a strong candidate for those seeking a manageable yet spacious home with distinct architectural character.






No comment