Single-Story Modern Farmhouse Barndominium Plan with Expansive Wrap-Around Porch
This 2,000-square-foot house plan cleverly combines the aesthetic of a modern farmhouse with the practical, open-span feel of a barndominium. Designed for single-level living, the layout prioritizes a strong connection to the outdoors and functional interior flows. With three bedrooms, two and a half baths, and a significant wrap-around porch, it is well-suited for families or homeowners seeking a practical yet stylish home that maximizes living space both inside and out.
Floor Plans
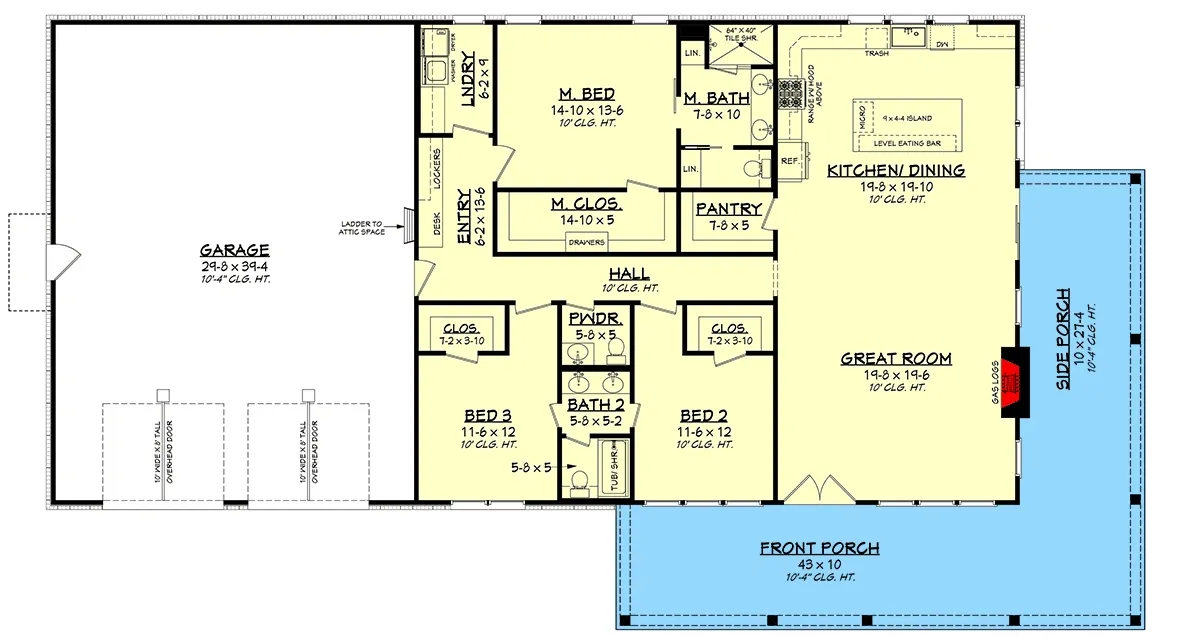
Main Level
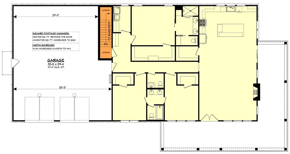
Basement Stairs Location
The single-story floor plan is centered around a large, open-concept great room, kitchen, and dining area, all under 10-foot ceilings. The kitchen features a substantial island with seating and is supported by a large walk-in pantry with ample storage. A practical mudroom with built-in lockers and a desk provides a functional entry from the 2-car garage, with a powder room and laundry room located nearby for convenience. The bedroom layout is a split design, offering privacy to the master suite. The master wing includes a spacious bedroom, a bathroom with dual vanities, a separate tub and shower, and a walk-in closet. On the opposite side of the home, two secondary bedrooms share a well-planned Jack & Jill bathroom, where each bedroom has its own private vanity area. The most prominent feature is the wrap-around porch, accessible from the front and extending along the entire side of the living area, providing significant outdoor living square footage.
Exterior Images






The exterior design is a clear representation of the modern farmhouse barndominium style. It features a prominent metal roof that defines the structure's simple, barn-like form. The walls are clad in board-and-batten siding, providing vertical texture. A key architectural element is the extensive wrap-around porch, supported by timber posts on stone piers, which adds depth and a sheltered perimeter to the house. The front facade is accented by a gable over the entry and a shed dormer, breaking up the roofline and adding visual interest. Large windows and french doors are utilized to connect the interior living spaces with the porch.
Positives
- Extensive wrap-around porch provides significant outdoor living space and connects multiple rooms to the exterior.
- Split-bedroom layout ensures privacy for the master suite.
- Highly functional mudroom entry from the garage with built-in organization and a desk.
- Jack & Jill bathroom for secondary bedrooms is thoughtfully designed with separate vanity areas.
- Large walk-in pantry offers substantial kitchen storage.
Points to Consider
- The shared toilet and shower area in the Jack & Jill bathroom could be a potential pinch point for simultaneous users.
- Proximity of the secondary bedrooms to the main living area may require consideration for noise transference.
Other Facade Suggestions
Dark Modern Minimalist
This variation presents a bold, monochromatic aesthetic with dark charcoal board-and-batten siding and a matching dark metal roof. The dark tones are contrasted by the warm light from the windows and the natural wood decking of the porch. The surrounding landscaping is minimalist and controlled, featuring concrete paver walkways, river stones, and architectural grasses, reinforcing the contemporary and moody feel of the home. This style is suited for those who prefer a sleek, modern, and understated exterior.
Rustic Cedar & Stone
Lean into a more traditional and warm appearance with this rustic interpretation. It features natural cedar shake siding on the gables and main body, paired with a copper-toned metal roof. Substantial stone veneer covers the porch columns and foundation, adding texture and visual weight. The landscaping is lush and naturalistic, with flagstone paths, mature flowering bushes, and garden beds, creating a welcoming, established cottage feel. This look is ideal for homeowners wanting a warm, textured, and classic countryside home.
Classic High-Contrast Farmhouse
This facade offers a crisp and timeless modern farmhouse look by pairing dark grey vertical siding with bright white trim on the windows, fascia, and columns. White painted brick on the column bases and foundation adds a classic material element. A dark metal roof provides a clean finish. The exterior is complemented by formal landscaping with manicured boxwoods, white hydrangeas, and a crushed stone pathway, resulting in a tailored and elegant appearance.
Industrial Material Mix
For a more edgy and modern aesthetic, this variation utilizes large-format concrete panels as the primary siding material, contrasted by dark wood-look cladding on the gable ends. Dark metal beams and a dark, weathered metal roof enhance the industrial feel. The landscaping is inspired by xeriscaping, featuring crushed granite paths, agave plants, and yucca, which perfectly matches the rugged, contemporary character of the facade. This style is a great fit for an urban or arid setting.
Coastal White Brick
A bright and fresh take on the design, this facade features white painted brick for the main walls and columns, giving it a solid, permanent feel. Dark blue vertical siding in the gables provides a distinct color contrast, topped with a dark bronze metal roof. The landscaping is vibrant and cheerful, with mass plantings of pink azaleas and a neatly edged brick paver pathway, creating an inviting and classic coastal farmhouse look.
Conclusion
This 2,000-square-foot plan is a strong contender for those seeking a functional, single-story home that blends modern living with the architectural character of a farmhouse barndominium. Its efficient use of space, practical utility areas, and significant outdoor living potential through the wrap-around porch make it a highly livable design. The varied facade options demonstrate its versatility, allowing it to be adapted to a wide range of aesthetic preferences.





No comment