We blend human expertise with the intelligence of advanced AI design software to bring you inspired, detail-driven interior concepts every time.
This 2,290 square foot New American Farmhouse plan offers a practical single-story layout designed for modern functionality. Defined by its split-bedroom configuration and an open-concept core, the design prioritizes flow and efficient use of space. Extensive porch systems on both the front and rear extend the living areas outwards, making it well-suited for homeowners who value integrated indoor-outdoor lifestyles and distinct architectural character in a manageable footprint.
Floor Plans
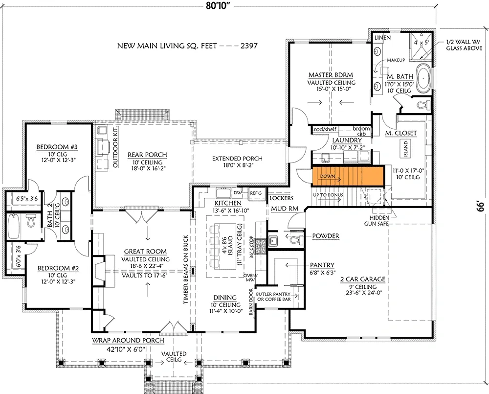
Main Level
Bonus
Main Level – Basement Version
The floor plan centers around an open-concept great room, kitchen, and dining area, fostering connectivity. The great room features a fireplace and a vaulted ceiling accented with timber beams, opening directly to a large kitchen with a central island and eating bar. The primary suite is secluded behind the garage wing for privacy, offering a vaulted ceiling, a five-fixture bathroom, and a substantial walk-in closet that conveniently connects directly to the laundry room. On the opposite side of the home, two secondary bedrooms share a compartmentalized Jack-and-Jill bathroom. Service zones are well-planned, including a mudroom with lockers off the 2-car garage, an adjacent powder room, and a walk-in pantry. A second-story bonus room above the garage provides flexible space and includes a full bathroom, suitable as a fourth bedroom or recreation area.
Exterior Images





The exterior design epitomizes the New American Farmhouse style through a strategic blend of materials. The elevation typically features brick foundations or wainscoting paired with board-and-batten siding on the main body and gables. The roofline is dynamic, utilizing multiple prominent gables and dormer windows accented with metal roofing, particularly over porch areas. A defining characteristic of this plan is the extensive wrap-around front porch supported by robust timber columns, providing significant covered outdoor area and establishing a strong architectural presence.
Positives
- Primary closet connects directly to the laundry room for superior workflow.
- Split-bedroom design ensures privacy for the primary suite.
- Extensive outdoor living space, including a wrap-around front porch and vaulted rear porch with an outdoor kitchen.
- Well-organized service entry with a dedicated mudroom, lockers, and pantry near the garage.
- Flexible bonus room over the garage includes a full bath.
Points to Consider
- The shared Jack-and-Jill bathroom for secondary bedrooms requires coordination between occupants.
- The open dining area may lack the formality some homeowners prefer.
Other Facade Suggestions
Modern Industrial Moody
This variation employs a dark, moody color palette with dark stucco walls and contrasting rustic wood accents in the gables and soffits. A dark metal roof and black window frames enhance the industrial feel. Integrated warm LED lighting highlights the architectural lines at dusk. The landscaping is minimalist and modern, featuring large concrete pavers, geometric planters with architectural succulents like agaves, and drought-tolerant grasses. This style is suited for those appreciating contemporary, edgy design with high contrast.
High-Contrast Nordic Farmhouse
Defined by sharp contrast, this facade features black vertical board-and-batten siding against natural, light-toned wood cladding in the gables and porch columns. A black metal roof and black-framed windows maintain the sleek aesthetic. The exterior surroundings include a precise pathway of large rectangular pavers set in gravel, bordered by structured low hedges and ornamental grasses, leading to a manicured lawn. This look appeals to lovers of clean Scandinavian design and modern farmhouse architecture.
Contemporary Minimalist
This approach utilizes clean white stucco paired with bold black accent panels and black metal trim for a striking geometric look. The traditional gables are retained but modernized with clean lines and flat roof sections over the porch. The landscaping is highly structured and minimalist, featuring integrated strip lighting along a smooth concrete path, rectangular raised planters with architectural aloes, and manicured low hedging. It is ideal for homeowners seeking a sleek, luxurious, and uncluttered aesthetic.
Pacific Northwest Zen
Inspired by craftsman and Japanese influences, this facade uses dark charcoal siding contrasted by warm, natural cedar wood in the gables and a timber entry truss. A dark tile roof adds texture. The landscaping is a focal point, featuring a Japanese zen garden aesthetic with a raked gravel area, manicured bonsai-style pines, vibrant Japanese maple trees, mossy ground cover, and river stones lining concrete steps. This tranquil style suits those who want an organic, peaceful connection to nature.
Rustic Transitional
Combining warm earth tones with modern materials, this facade features greige stucco walls, a dark metal roof, and rusted steel panels accenting the gables. Timber beams support the porch. Warm up-lighting creates an inviting glow. The landscaping is naturalistic and textured, with a flagstone pathway curving through garden beds filled with native grasses, yuccas, and drought-resistant shrubs. This style is perfect for those desiring a sophisticated yet warm and rugged exterior.
Modern Black Barn
This striking interpretation uses an all-black exterior with vertical siding, including the metal roof and window frames, creating a monolithic form. The only contrast is provided by natural light wood cladding in the single side gable and the front door. The landscaping is clean and contemporary, with a curved path of concrete pavers and gravel, flanked by varied green plantings including ferns, hostas, and ornamental grasses. It appeals to those drawn to bold, minimalist, and highly graphic architectural statements.
Conclusion
This New American Farmhouse plan successfully balances private living quarters with generous communal spaces within a single-story footprint. The thoughtful inclusion of highly functional details, such as the direct laundry connection to the primary suite and the dedicated mudroom zone, significantly enhances daily usability. Combined with substantial outdoor living areas and the flexibility of the upstairs bonus space, it represents a robust design adaptable to a variety of modern household needs.






No comment