We blend human expertise with the intelligence of advanced AI design software to bring you inspired, detail-driven interior concepts every time.
This house plan is designed to maximize views and outdoor living, making it suitable for a lakeside or scenic property. The layout features a two-story structure with an optional finished lower level, ideally situated on a sloped lot. The design emphasizes an open-concept main floor, a main-level primary suite, and substantial porch space that wraps around three sides of the home.
Floor Plans
Main Level
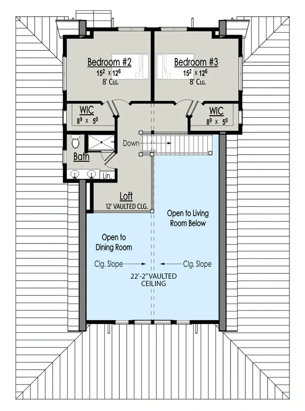
2nd Floor
Optional Lower Level
The main level is organized around a central open living, dining, and kitchen area, all situated under a vaulted ceiling that enhances the sense of volume. The kitchen features an island and an adjacent pantry. The primary bedroom suite is conveniently located on this floor, providing single-level living capability. A powder room and laundry room complete the main level. The defining feature is the extensive wraparound porch, a portion of which is screened. The upper level contains two additional bedrooms with walk-in closets, sharing a Jack-and-Jill bathroom. A loft area overlooks the living room below. An optional lower level offers potential for a large recreation room, a fourth bedroom, a full bathroom, and mechanical space, suitable for a walk-out foundation.
Exterior Images











The exterior architectural style combines elements of a modern farmhouse with a rustic lake cottage. Key features include a prominent gabled metal roof and a mixed-material facade utilizing board-and-batten siding and a stone veneer base. The structure is defined by its extensive columned porch that wraps around the building. Large windows, particularly in the upper gable end, are designed to admit natural light and frame outward views. The design is structured to accommodate a sloping terrain, with a visible lower level foundation.
Interior Images




















Based on the floor plan, the interior is designed to feel spacious and interconnected. The double-height, vaulted ceiling in the main living area is a primary spatial feature. The open arrangement of the kitchen, dining, and living zones allows for clear sightlines and circulation. The placement of the fireplace is specified on the plan, serving as a focal point for the living space. The upper-level loft provides a visual connection to the floor below, contributing to the overall open feeling of the design. The plan allows for various finish options, as suggested by the illustrative interior images showing elements like wood flooring and a stone fireplace.
Positives
- Extensive outdoor living space provided by the wraparound and screened porches.
- Main-level primary suite offers convenience and accessibility.
- Open-concept living area with a vaulted ceiling creates a spacious interior volume.
Points to Consider
- The design is best suited for a sloped lot to fully utilize the optional lower level.
- The open loft area may result in sound transfer between the upper and main levels.
Other Facade Suggestions
Modern Black and Wood
This variation presents a modern aesthetic with dark black vertical siding contrasted by natural wood timber columns and beams on the porch. A dark metal roof and black window frames complete the monochromatic look, while a stone veneer base adds texture. The surrounding landscaping includes structured stone pathways and stairs lined with ornamental grasses and manicured shrubs, complementing the clean lines of the architecture. This style is well-suited for those seeking a bold, contemporary design with warm rustic accents.
Rustic Wood and Stone
Emphasizing natural materials, this facade features dark-stained horizontal wood siding and substantial stone veneer on the foundation and columns. A copper-colored metal roof and matching gutters add a warm metallic element. The exterior environment is designed with natural stone steps and a flagstone path winding through a landscape of ferns, rhododendrons, and large boulders, creating a setting that blends with a wooded or mountain environment. This approach appeals to homeowners who prefer a traditional, earthy lodge aesthetic.
Minimalist White and Glass
This design opts for a bright, minimalist approach with white vertical siding and a light-colored metal roof. Natural wood is used for the porch structure, providing a subtle contrast. A key modern element is the use of glass railings on the stairs and porch, offering unobstructed views. The base is finished with smooth white stucco. The landscaping is minimal and clean, featuring white river stones, concrete pavers, and simple plantings of white birches and grasses. This style is appropriate for a modern coastal or lakeside setting.
Industrial Corten and Concrete
This facade utilizes industrial materials for a distinct look. Corten steel panels with a weathered patina cover the upper sections, while the base and columns are constructed from board-formed concrete. Exposed steel I-beams form the porch structure. A dark metal roof caps the design. The landscaping is xeriscape-inspired, with gravel beds, concrete paths, and drought-tolerant plants like agave and cacti. This rugged aesthetic is suitable for arid environments or for those who appreciate industrial architecture.
Transitional Grey and Stone
A balanced transitional style is achieved with light grey painted siding accented by natural wood panels and white trim. The roof is a medium-grey metal. A lighter-toned stone veneer is used for the base and porch columns. Glass railings are installed on the deck areas. The surroundings feature a manicured lawn, a flagstone path, and abundant hydrangeas, creating a classic and tidy appearance. This versatile look fits well in various established neighborhoods or scenic locations.
Reclaimed Rustic
This variation focuses on a weathered, antique appearance using reclaimed wood siding and heavy timber framing for the porch. An aged copper roof and dark stone veneer base contribute to the rustic character. The landscaping is naturalistic, with irregular stone paths, a gravel dry creek bed, and a mix of wildflowers and native plants. This style is ideal for a retreat setting, appealing to those who value historical materials and a natural patina.
Coastal Cottage
Evoking a beach cottage feel, this facade features light blue horizontal siding with crisp white trim and columns. A dark grey metal roof provides contrast. The base is finished with white painted brick. The landscaping is designed with sand beds, a crushed shell path, and dune grasses, reinforcing the seaside theme. This light and airy style is perfect for a coastal property or a sandy lakefront beach.
Conclusion
This house plan offers a functional layout centered on open living and extensive outdoor connection through its signature wraparound porch. The design is adaptable to different exterior aesthetics and is particularly well-suited for sloped properties where views are a priority.






No comment