Functional Design Analysis: Single-Story Modern Farmhouse with Integrated Workshop
This 2,494 square foot house plan presents a contemporary take on the classic farmhouse style, designed for efficient single-story living. The layout emphasizes a balance between open communal spaces and private retreats, supported by substantial utility zones including a significant garage structure with dedicated workshop space. The exterior aesthetic is characterized by symmetry and mixed materials, suited for various regional landscapes.
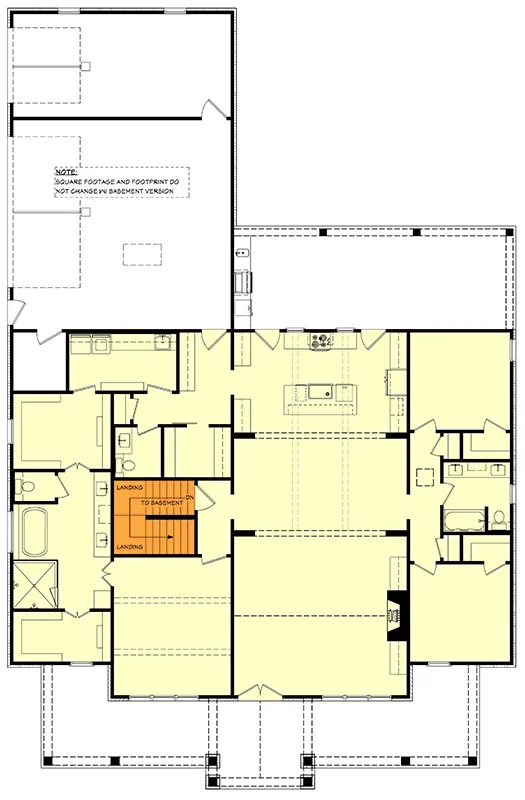
Floor Plans
Main Level
Basement Stairs Location
The main level floor plan utilizes a split-bedroom configuration to maximize privacy for the primary suite. Located on the left wing, the primary suite features a vaulted ceiling, dual walk-in closets, and a five-fixture bath. A highly functional layout choice is the direct pass-through connection from the primary closet to the large laundry room. The central core of the home is an open-concept space comprising a vaulted great room with a fireplace, an adjacent dining area, and a kitchen equipped with a large island and walk-in pantry. The right wing houses two secondary bedrooms that share a compartmentalized Jack-and-Jill bathroom. Additional features include a dedicated home office near the foyer and a well-organized mudroom entry from the garage with built-in lockers and a nearby powder room.
Exterior Images






The exterior elevation shows a symmetrical Modern Farmhouse design. It features a central gabled entry porch accented with timber trusses, flanked by two smaller dormer windows on the main roofline. The material palette suggests a combination of painted brick or stone veneer on the main body with board-and-batten siding on gabled accents. A standing-seam metal roof covers the entire structure. The three-car garage is configured as a side-entry, reducing the visual dominance of garage doors on the front facade. The rear elevation includes a substantial covered porch configured for an outdoor kitchen.
Positives
- Split-bedroom configuration ensures acoustic privacy for the primary suite.
- Direct connection between the master closet and laundry room significantly improves workflow.
- Oversized 3-car garage includes a distinct area labeled for a workshop.
- Dedicated home office space located away from the main living areas.
- Substantial covered rear porch extends the living space outdoors.
Points to Consider
- Secondary bedrooms are located a significant distance from the laundry room.
- The dining area is open-plan and may lack definition for formal dining preferences.
Conclusion
This 2,494 square foot plan offers a highly practical layout for those seeking single-level living without sacrificing utility. The thoughtful inclusion of large service areas, such as the workshop and the well-connected laundry room, addresses practical daily needs. The distinct separation of sleeping wings combined with a central open living core results in a well-balanced and functional home design.





No comment